巅峰国际

返回列表
您当前的位置: > 巅峰国际 动态 > 行业巅峰国际 >
气体灭火防护区设置多套管网有依据吗?有哪些注意事项?
发表于:2017-07-20 08:35:44 分享至:

经常有客户咨询气体灭火系统图纸一个防护区布置了多套管网。多套管网的集流管有些是合用的、有些是分开。这种设计是否符合规范?

巅峰国际: 根据《气体灭火系统设计规范》GB50370-2005第3.1.10条文:

同一防护区,当设计两套或三套管网时,集流管可分别设置,系统启动装置必须共用。各管网上喷头流量均应按同一灭火设计浓度、同一喷放时间进行设计。

巅峰国际: 根据条文,一个防护区可以设置两套或三套管网,并且集流管可分别设置。但需要注意条件:

巅峰国际: 1、     系统的启动装置必须公用;

2、     各管网上喷头流量应按同一灭火设计浓度、同一喷放时间进行设计。

巅峰国际: 以下分别说明。

巅峰国际: 针对条件1,可以有两中集流管设置型式

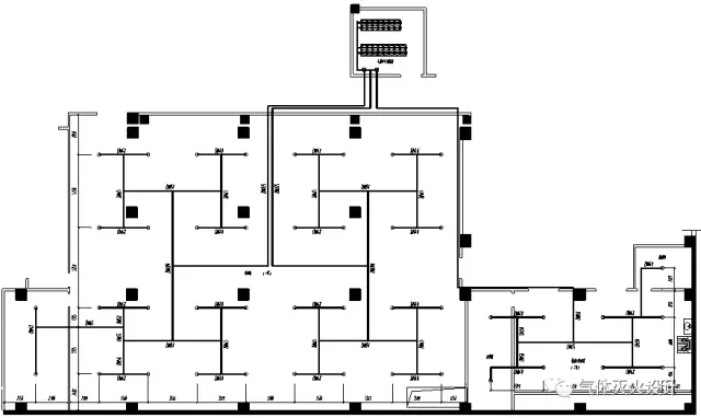
巅峰国际: 一、共用集流管

如图1所示,一区采用2套管网,共用集流管的型式。一区共用启动装置,一区启动瓶启动后,启动气体同时打开一区的2个选择阀,然后再打开对应的灭火剂瓶组。

图1 共用集流管

巅峰国际: 图1 共用集流管

图1这种共用集流管的型式一般适合一个防护区有多个封闭空间的场所、或者总集流管小于DN150的情况。

巅峰国际: 二、不共用集流管

如图2所示,一区采用2套管网,集流管分开布置的型式。1区启动瓶启动后,启动气体同时打开一区的选择阀,然后通过三通分开,分别打开集流管1和集流管2上对应的灭火剂瓶组。集流管1上的灭火剂瓶组开启后,直接喷向防护区1,集流管2上对应的灭火剂瓶组开启后,通过选择阀1喷向防护区1。

图2 不共用集流管

巅峰国际: 图2 不共用集流管

图2这种集流管分开的型式,一般适用于如果合用集流管大于DN150的情况(分层2套集流管的话,集流管可能会小于或正与DN150)或防护区比较大的防护区。

巅峰国际:  针对第2点

巅峰国际: 根据《气体灭火系统设计规范》 GB50370-2005的3.1.3条:

几种可燃物共存或混合时,灭火设计浓度或惰化设计浓度,应按其中最大的灭火设计浓度或惰化设计浓度确定。

虽然管网是分开设置的,可能不同管网负责的是同一防护区的不同封闭空间,但是由于是同一个防护区,应该按同一浓度设计(不同封闭空间的最大灭火浓度或惰化浓度),理所当然各管网上喷头流量应按同一灭火设计浓度、同一喷放时间进行设计。

巅峰国际: 一个防护区设置两套或三套管网有以下好处:

1、 尽量避免使用或少使用管道三通的设计,因其设计计算与实际在流量上存在的误差会带来较大的影响。

2、  在一防护区里包含工作层、吊顶层两个封闭空间的情况,如果采用一套管网,会出现多种型式的三通,可能会导致工作层和吊顶层内的的灭火浓度不一致,如导致吊顶层内浓度过高、工作层内浓度过低,达不到灭火效果。可设计两管网以减少三通的使用。

3、 对于不规则的防护区采用两套或三套管网设计,还可使本应为不均衡的系统变为均衡系统。

4、  对一些大防护区、大设计用量的系统来说,采用两套或三套管网设计,可减小管网管径,有利于管道设备的选用和保证管道设备的安全。

巅峰国际:  


注:本文为气体灭火设计(公众号:qitimiehuosheji)原创,转载请注明处出。

var _hmt = _hmt || []; (function() { var hm = document.createElement("script"); hm.src = "https://hm.baidu.com/hm.js?25a8b6ddd6dc7b9a90aeb1f51e218aa6"; var s = document.getElementsByTagName("script")[0]; s.parentNode.insertBefore(hm, s); })(); 3377体育网站(全站)入口官方网站登录入口 HOME-富联娱乐「保障平台,省心注册」 - pgfl 意昂3体育 -〈意昂3用心游戏,乐在其中〉 xk星空体育官网(综合)官方网站入口/网页版/苹果/手机版 意昂4-创新平台,注册畅享文化之梦!